作者姓名:袁国庆指导老师:马永超
站在毕业的门槛回望,我深感幸运与感激——我的环境设计毕业作品《拾艺新境--崖州骑楼老街工艺品商店改造设计》获得了“优秀毕业设计作品”的荣誉。这份认可,不仅是对四年专业学习的总结,更是对我探索此类传统建筑更新作理论参考——当设计不再止步于物质修复,而是致力于重构文化、技术与社群的共生发展,方能在快速城市化中,为地方性文化传承留存一片生生不息的“文化湿地”这一课题的莫大鼓励。


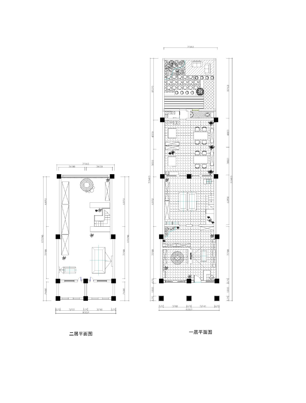
《拾艺新境》设计作品的诞生,源于我对三亚市崖州区古城深切观察。那些被现代建筑环绕、日渐沉寂的老旧街角,居民缺乏共享的多维空间,邻里互动也日渐稀少。我选择了一个典型的、烟火气的街区地带作为设计场地,决心用设计唤醒它的活力。我的核心想法是通过“空间-文化-技术-社群”立体展现策略,探索了历史街区商业空间更新的创新范式。这不仅仅是简单的改造,而是构建一个立体叠合的生态系统;一层是灵活开放的文创展示与场景化手工体验与绿色休息空间,鼓励亲手体验手工艺、感受独特的崖州文化,“重拾传统技艺,重塑文化新境乐趣”;二层则通过精巧的立体装饰和模块化展示,形成供人休憩、交流的“创-展-联”设计空间;顶层引入轻型的雨水收集与光伏系统,让自然元素在设计中循环流动。



整个创作过程充满挑战。如何在逼仄的古旧空间实现功能的复合与生态的平衡?我反复推敲方案,模型做了七十二稿,图纸堆满了书桌。最令我欣慰的是,设计不仅解决了空间利用问题,更将“社区营造”的理念融入其中,让“展售”、“体验”、“休闲”这些点成为激活当地骑楼空间与现代居民融合关系的种子。当评审老师肯定方案“巧妙融合了生态智慧与社区温度,具有前瞻性和合理性”时,我知道那些通宵达旦的付出都值得了。




能获此殊荣,我由衷感谢我的导师马永超与徐啟春老师一路的悉心点拨,感谢学院提供的实践平台,感谢并肩作战的同窗好友们。环境设计于我,不仅是塑造空间,更是编织人与人、人与自然的情感联结。未来,我渴望继续深造,深耕传统建筑空间更新与可持续社区设计领域,用设计的力量,让更多城市角落焕发生机与温情。


同时毕业也是新的起点,我将带着母校的烙印与这份认可,继续在设计之路上探索前行。





