在建筑设计的世界里,图纸是连接创意与现实的桥梁,而精准测绘则是这座桥梁的坚实根基。艺术学院 2025 级《建筑制图与测绘》S 模块课程,以“实践导向、知行合一”为教学特色,通过校园实景测绘与专业图纸绘制的双向训练,不仅为相关专业新生筑牢了专业基础,更培养了其严谨务实的职业素养与创新思维,为未来城市建设领域输送高素质人才注入了鲜活力量。
破冰筑基,搭建专业启蒙桥梁
《建筑测绘与表达》作为艺术学院为建筑制图相关专业新生量身打造的 S 模块课程,是衔接高中与大学专业学习的关键桥梁。该课程定位为实践导向型基础技能课程,摒弃高深理论的灌输,聚焦“破冰”与“筑基”核心目标,直接解决学生在制图与测绘中的基本问题,帮助新生快速进入专业思维模式。学术委员会主任吴晓淇教授担任课程顾问,由徐啟春、吴耀华、陈晓龙、徐游、刘屹然等多名教师组成课程教学团队。该课程的开设,不仅契合了行业发展对专业人才的培养要求,更响应了高等教育“强化实践教学、提升综合素养”的改革方向。通过课程学习,学生不仅能够熟练掌握建筑测绘的基本方法与制图规范,更能建立起“用图纸认知世界、用专业服务社会”的职业认知,为后续专业学习与职业生涯发展奠定坚实基础。
知行合一,在实践中锤炼真本领
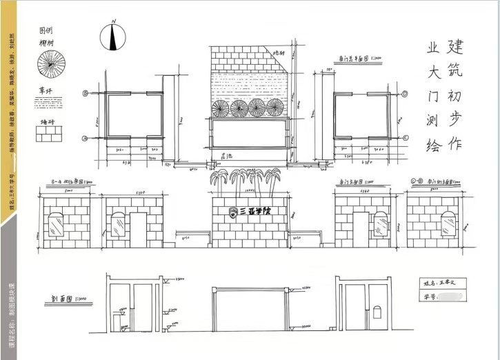
课程共15学时、8个教学周,采用“理论讲授-示范模仿-实操研讨-成果复盘”的螺旋式教学法,循序渐进地引导学生从理论认知走向实践应用。教学初期,通过案例研讨引发学生思考“何为建筑测绘”“不同专业看待建筑的差异”等核心问题,帮助学生建立专业认知;中期聚焦平面图、立面图、剖面图及轴测图的测绘与表达,以三亚学院南门为实景测绘对象,涵盖门卫室、花坛、人行道、车行道等全要素测量;后期通过小组互审、教师评图等方式复盘成果,解决共性问题。
在教学过程中,教师团队全程陪伴指导,用专业与耐心助力学生成长。徐啟春等多位教师亲自带领学生深入校园南门实地测量,从大尺寸构件的精准勘测到利用砖块估算未知长度的实用技巧,毫无保留地倾囊相授。在教学复盘环节,吴晓淇教授亲临评图现场,结合数十年的专业教学与职业实践经验,着重强调了建筑表达、工程测绘在专业启蒙和空间认知中的重要性,在黑板上用精湛的徒手草图快速纠正图纸中的共性问题,并对同学们的未来职业规划提出了中肯的建议,同学们备受鼓舞。城规 2501 班王子川同学坦言:“老师设身处地带领我们测量大门,才让我们顺利完成了测绘作业,这种言传身教的方式让我们受益匪浅。” 环境设计专业冯依婷同学则分享了自己的成长:“绘制标高时曾因疏忽导致数据偏差,老师及时提醒我核对数据、反复调整,让我深刻体会到建筑制图的严谨性,每一个标注都是实际场景的理性投射。”

小组协作与互动研讨成为课程的一大亮点。学生们在实地测量中分工合作,汇总数据时协同攻坚,版面设计时集思广益,不仅高效完成了学习任务,更培养了团队配合与协同能力。在小组互审环节,学生们相互找出图纸中的错误与模糊之处,在思辨与交流中深化对专业知识的理解。王子川同学表示:“在设计展板时,我们遇到了规划不足、布局混乱等问题,通过团队讨论不断优化方案,不仅让展板更加清晰有条理,更提升了我们的设计思维与解决问题的力。”

专业呈现,用图纸讲述空间故事
课程要求学生在展板中完整呈现校园南门的平面图、立面图、剖面图及轴测图,并举办课程汇报展,全方位展示学习成果。在学生完成的展板作品中,既能看到严谨规范的专业表达,又能感受到独具匠心的设计巧思。
按照课程传授的制图规范,学生们用粗实线勾勒建筑墙体,中实线标注次要物体,细实线标注尺寸与填充图例,在1:200 总平面图中清晰区分车道、人行道与铺装区域。轴测图的绘制更是成为成果亮点,有些同学采用右侧 45°视角,将二维数据转化为三维空间,同时融入椰树等热带元素,让图纸既符合规范逻辑,又保留了场地的地域特质。展板设计上,学生们精心规划排列布局与比例关系,使展示内容清晰有条理,便于大众理解,充分展现了专业素养与设计能力。
课程成果得到了师生的高度认可。教师团队认为,学生们的作品不仅准确呈现了建筑的空间形态与尺寸数据,更传递出对建筑功能、形式与地域特色的理解,实现了从“数据堆砌”到“空间叙事”的跨越。参与课程的学生们也通过成果展示增强了专业自信,同学说:“看到自己完成的展板,真切感受到了从零基础到能独立绘制专业图纸的成长,这种成就感让我对未来的专业学习充满期待。”



创新育人,打造实践教学新模式
《建筑制图与测绘》S 模块课程的成功开展,探索出一条“以实景为教材、以实践为路径、以素养为目标” 的育人新模式。课程通过将校园场景转化为教学资源,打破了传统课堂的时空限制,让学生在熟悉的环境中直观感受专业魅力;通过螺旋式教学法与互动式研讨,充分调动了学生的学习主动性与创造性;通过强调专业规范与严谨态度,帮助学生树立了正确的职业价值观。
从学生成长来看,课程不仅提升了他们的专业技能,更塑造了其认真严谨的工作态度、协同合作的团队精神与解决问题的实践能力。这些素养的培养,不仅适用于专业学习,更将伴随学生一生,成为其未来立足社会、服务社会的宝贵财富。正如冯依婷同学所说:“课程教会我的不仅是绘图技巧,更让我建立起‘用图纸认知世界’的专业视角,这份严谨与逻辑将成为我后续学习与工作的基础。”
面向未来,艺术学院将继续优化《建筑制图与测绘》课程体系,不断创新教学方法与实践路径,持续提升教学质量。相信在这门课程的启蒙与滋养下,学生将带着扎实的专业基础、严谨的职业态度与创新的实践能力,投身于未来的工作中,用专业知识与技能绘制美好生活蓝图,为社会发展贡献青春力量。





文字:艺术设计学院
图片:艺术设计学院
编辑:王馨羽
一审一校:杨霄华
二审二校:张鑫
三审三校:陈琳



